清晨的农贸市场藏着人们生活的温度,摊位前的寒暄、带着露水的鲜蔬是最质朴的烟火写照,但这份烟火气背后,也难掩传统模式下的诸多不便与短板。


上海葛洲坝农贸市场此次升级改造,设计师为其保留住了富有邻里情怀的核心优势,致力于打造一个开放、包容、多元、便利、烟火、温馨的农贸市场。
项目概况
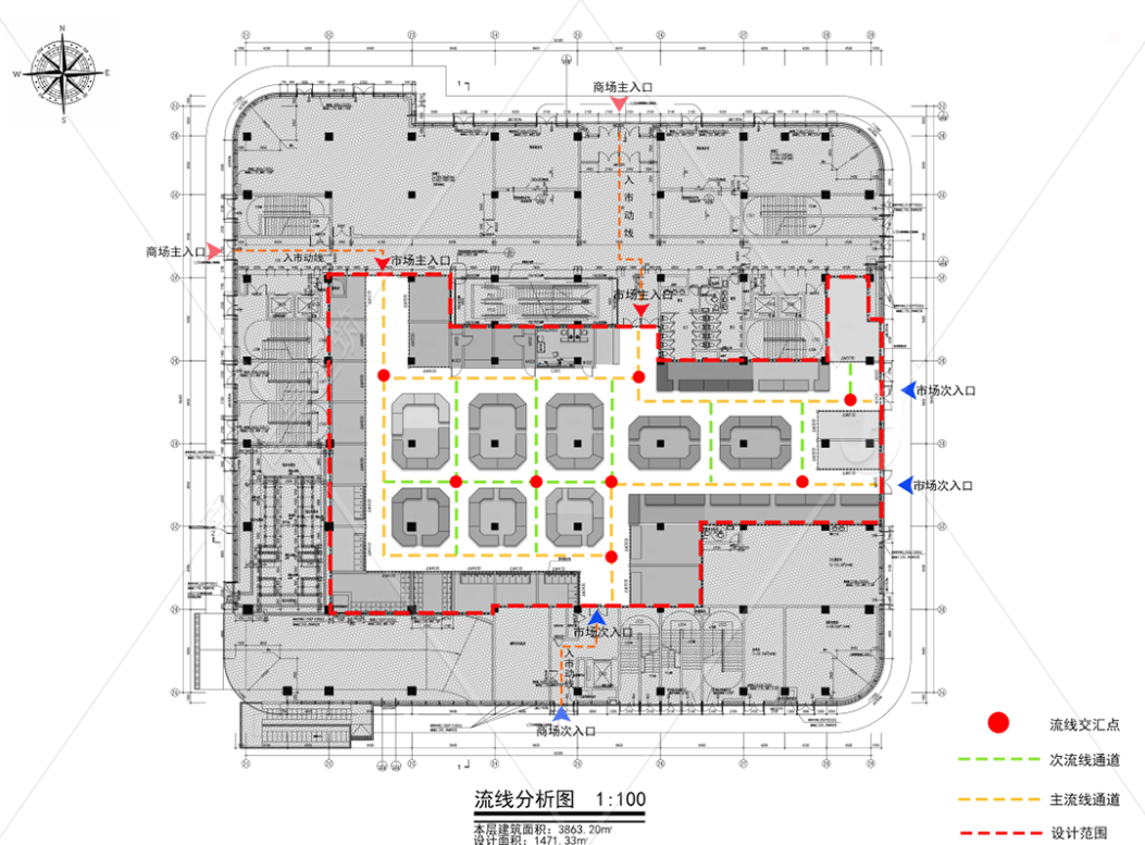
本案位于上海市青浦区香花桥街道E-04-23地块2号楼,地上一层,为该建筑使用性质之一的菜场进行设计。本层建筑面积为3863.20㎡,其中设计面积为1471.33㎡。

项目位于成熟居住区集群,人口密集且消费需求稳定,商业潜力充足。紧邻清河湾路主干道,交通便捷、客流汇聚,加之天然水系环绕,兼具交通优势与生态属性,双重赋能商业价值与生活品质。

功能分区
设计师遵循“划行规市,干湿分区”的行业规范与设计准则,对功能区域进行科学划分,实现生熟分离、干湿隔离,从根源上避免交叉污染,既保障了食品安全,也为消费者选购与市场管理提供双重便利。

业态分布
市场共规划90户经营摊位,构建了覆盖“从田间到餐桌”的全链条业态体系。
其中蔬菜摊位29户保障日常生鲜供给,18户肉类摊位与3户水产摊位满足蛋白质需求,另外搭配水果、冰冻、干货粮油、豆制品等基础业态,引入快捷菜、海鲜、卤味、牛羊肉、禽蛋等特色品类,同时专设5户自产自销摊位,为周边农户提供直销渠道,让居民能买到新鲜实惠的本地农产品。丰富的业态配比既贴合社区消费习惯,又通过差异化布局提升了市场竞争力。

流线分析
为破解传统菜场“拥挤堵塞、动线混乱”的痛点,我们采用“主流线+次流线”的双轨设计,打造8个关键流线交汇点,实现客流的高效分流与循环。
市场设置2个主入口保障主要人流进出,3个次入口衔接商场与道路周边交通节点,主通道适配各个时间段的通行需求,次通道则串联各功能分区,形成“无死角、不绕路”的购物动线,让每一处摊位都能获得均衡客流。

设计效果
市场整体视觉干净利落,无冗余装饰,侧重空间的通透感与实用性。色调以低饱和度的中性色为主,浅灰色地面搭配原木色摊位岛台,营造出清爽、整洁且贴近自然的氛围,弱化了传统农贸市场的杂乱感。



四大类岛台颜色划分清晰,造型方正规整且边界清晰,整体布局紧凑有序,与公共区域设施风格统一,兼顾功能与视觉整洁。




作为深耕农贸市场行业二十余年的设计单位,我们深知传统菜场的经营痛点。此次上海葛洲坝农贸市场的升级改造,正是一场“精准解题”,用可落地的设计方案,让菜场告别“脏乱差”的刻板印象,让经营回归简单,让收益稳步增长。
我们始终坚持“从规划到落地”的一体化服务模式,以专业能力为市场保驾护航,让每一个农贸市场都能成为兼具民生温度与商业价值的标杆项目。