项目面积145平,项目坐标:江苏·南通,设计师说:这套房子的设计收纳做的看似常规,但合理轻巧地把收纳功能融进了空间

▲ 平面结构图

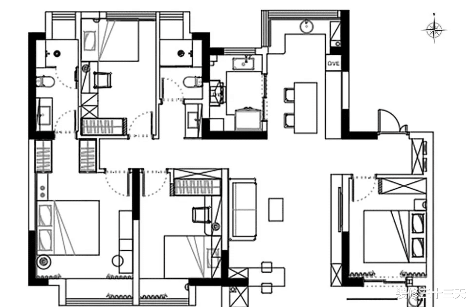
▲ 平面布置图

▲ 客厅纳入阳台提升使用面积与采光,低饱和墙顶面配上柔光砖,让人感到舒适和放松

▲ 沙发背景运用木饰面与浅灰色硬包结合,富有质感和层次

▲ 选择小边几取代传统茶几,方便随时移动腾出更多活动区

▲ 阳台设计高柜与休闲吧台穿插一体,里侧矮柜下方还预留了扫地机器人充电位

▲ 沿墙定制整排电视储物柜,半藏半露设计,兼具美观性与实用性

▲ 阳台看向餐厅视角,南北通透

▲ 餐厅定制卡座,兼顾了储物与座位功能,还节省了空间

▲ 打通北阳台设置U型西厨区,同时解决餐边收纳需求

▲ 过道增设收纳柜,中间做开放格可以放孩子们的书籍

▲ 开放格小景

▲ 整体功能齐全且温馨的南儿童房,床头设置吊柜,开放格与拼色的设计,让柜子有轻盈感

▲ 左侧还有一排大衣柜,延伸出的书桌具备床头柜功能

▲ 床头小景

▲ 飘窗布置小茶几和靠背椅作为休闲一角

▲ 北儿童房,蓝黄撞色让空间充满活力

▲ 窗前放一个望远镜,让喜欢仰望星空的孩子去探秘宇宙

▲ 主卧延续公区格调,拥有简约安宁的舒眠氛围

▲ 床头点缀极简吊灯

▲ 床尾布置梳妆台+收纳柜一体,赋予卧室更多功能性