小编今天分享的是一套建筑面积75平米的北欧风小户型二居室案例,设计师以蓝色作为主色调,然后在各个空间都点缀了粉色的软装和设计,来营造出一种浪漫、梦幻的感觉,色彩缤纷而又不显杂乱,这样的搭配实在是太美了,一起来看看吧~

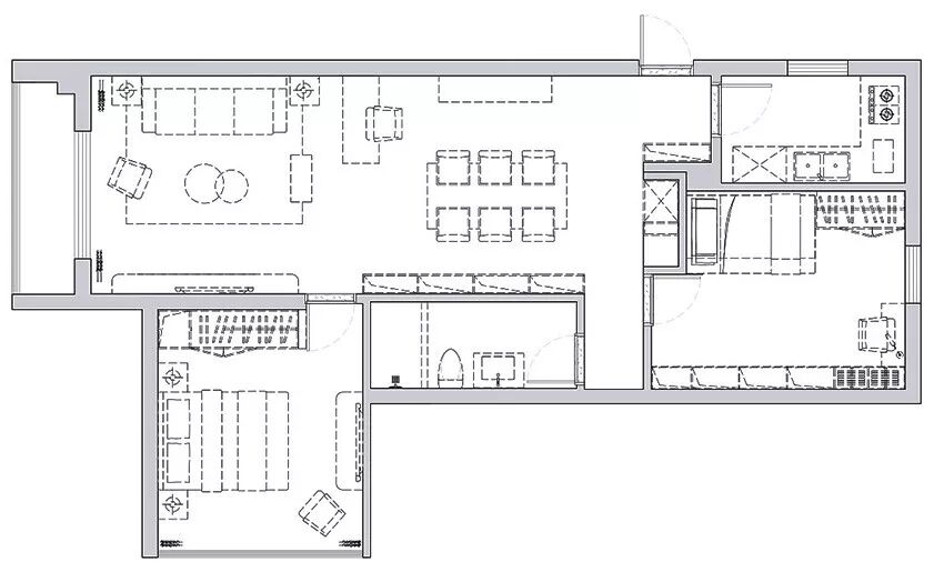
平面布置图

入户的玄关走廊连通了餐厅和厨房空间,在入户门的对面做上到顶的鞋柜,中间留空摆放杂物。地面铺贴人字拼的木地板,让玄关走廊看起来更加宽敞。

走过玄关走廊就到了餐厅空间,餐厅的墙面刷成了浅蓝色,青绿色和粉色的餐椅大理石餐桌,上方的吊灯也是相同的色调搭配方案,看起来非常有小清新感。

在餐厅的一侧墙面做上了满墙的储物柜,中间留空了大部分的格子来摆放书籍,让餐厅多出了一些文艺感。

客厅和餐厅之间是通过一个粉色调的吧台来作为隔断,吧台椅可以塞在吧台的下方,侧方还有斗柜和边几,储物功能很强大。

客厅的沙发背景墙同样是刷成了浅蓝色,搭配蓝色的布艺沙发和窗帘、灰色调的地毯、粉色的单椅,整个客厅的色彩缤纷而又不杂乱。

客厅的电视背景墙上没有做装饰,小编觉得这扇卧室门可以选择改成隐形门的款式,这样看起来会更不那么突兀一些。

主卧室的背景墙延续了客餐厅的配色方案,还用照片墙来进行点缀,粉色的抱枕和单椅给卧室带来一丝浪漫、可爱的感觉。

卧室另一侧的墙面是被利用起来做了衣柜,封闭式的衣柜和开放式的搁架结合起来,能够满足不同需求下的收纳,更方便做物品分类收纳。

卫生间内部的空间虽然比较迷你,但也作为干湿分离的设计,以灰色为主的卫生间加入白色、木色的卫具,让人感觉更加轻松、舒适。