中古风

第一套案例是三室两厅的房屋,业主是95后的年轻夫妻;房屋原始是精装房,业主对未来的生活有很多规划,可以接受房屋做出比较大的拆改来实现居住体验感与颜值的升级。
功能设计


左右滑动查看更多
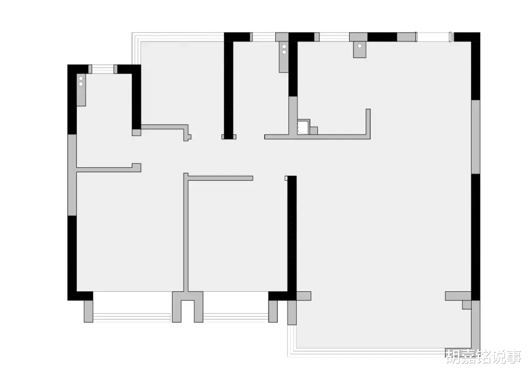
布局改造:①原始布局玄关餐厨挤在一起,将厨房与餐厅玄关打通,设计开放式厨房+餐厨一体,使用便捷度更高。②客厅与阳台打通,室内采光效果更好。③保留两个南卧室,北次卧改为书房。
④卫生间将门洞移动至台盆区与马桶区之间,实现干湿分离。
01
玄关+餐厨


设计亮点:①将玄关、餐厨打通后,空间更显大,利用率也更高。②入户门侧边定制一整排柜体,功能包含玄关端景、玄关柜、餐边柜。
③玄关端景结合拱形设计、抽屉收纳,丰满玄关的收纳、颜值。



餐厨设计:①厨房定制橱柜,嵌入冰箱,整体感更好。②橱柜设计胡桃木骨骼线柜门,增加中古氛围感。
③餐厅选择岛台+圆桌,可以增加收纳力,也可以作为西厨操作区使用。
02
客厅



设计亮点:①客厅阳台打通,提升室内采光通风效果。②沙发背景墙定制一整排柜体,提升客厅收纳力。
③电视背景墙设计悬挑造型+洞石装饰,兼顾颜值与质感。
④客厅阳台之间不能拆的横梁,用木饰面包裹,提升颜值。
⑤阳台定制家政柜,嵌入洗衣机烘干机,解放阳台晾晒空间。
03
主卧


设计亮点:①床头背景墙设计护墙板墙裙+石膏线装饰。②保留飘窗,作为休闲区使用。
04
次卧


设计亮点:①次卧定制衣柜、床头柜,空间利用率高。②同样保留飘窗,可作为休闲区使用。
05
卫生间


设计亮点:将卫生间的门洞移动至台盆区与马桶区之间,实现功能独立,提升卫生间利用率,解决干湿分离的问题。
02123㎡中古风

第二套案例是一家三口居住,风格同样是选择了中古风,但业主的女儿更喜欢偏意式的感觉,所以整体的风格处理更干净利落一些。
功能设计


左右滑动查看更多
布局设计:①拆除门侧边的厨房非承重墙,改为玄关鞋柜。②大横厅和阳台打通,扩大室内面积。③餐厅增加岛台,增加餐厅功能。
④保留三个卧室,主卧改造布局增加步入式衣帽间。
01
客厅



设计亮点:①沙发背景墙定制一排柜体,功能结合收纳、水吧、家政柜。②电视背景墙设计护墙板装饰,提升质感。
③客厅阳台打通后,设计百叶帘+纱帘。
④面向客厅的主卧门洞,设计双开门,门板样式设计柜体同材质。
02
餐厅



设计亮点:①餐厅增加岛台,增加餐厅收纳,也可作为西厨操作台使用。②靠墙定制悬挑收纳柜,结合岩板台面,提升质感。
03
厨房


设计亮点:①厨房定制橱柜,空间利用率最高。②厨房与餐厅之间设计口袋门,打开幅度最大,提升整体家居的通透度。
05
主卧




③主卧与主卫之间的墙体增加玻璃砖隔断,提升通透度。
④飘窗增加软垫,作为休闲区使用。
06
次卧

设计亮点:①定制衣柜、书桌,代替床头柜功能。②飘窗定制软垫,作为休闲区使用。
07
卫生间

●卫生间干湿分离,实现舒适升级。