推开这扇黄铜雕花门把手的瞬间,仿佛跌入了19世纪的巴黎公寓。阳光穿过人字拼木地板的缝隙,在石膏线勾勒的天花板上投下细碎金箔,洛可可风格的镜面壁炉将窗外的梧桐影揉碎成斑驳的诗行。这并非电影布景,而是一套通过现代工艺复刻法式复古精髓的居住样本——设计师以「时光胶囊」为概念,将凡尔赛宫的奢华基因、蒙马特高地的艺术灵韵与当代生活需求熔铸一体,在188㎡的空间里上演了一场跨越三个世纪的对话。接下来一起来看看吧!~
瑞高装修案例分享——凤凰悦府188㎡法式复古
案例风格:法式
案例面积:188平米
所在城市:郑州
案例户型:平层
所属楼盘:凤凰悦府
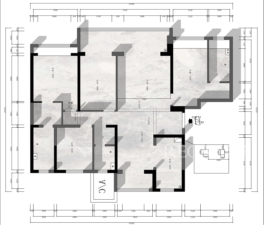
本方案是原始户型为四室两厅一厨三卫的结构,通过与业主沟通,将原户型部分墙体拆除使整体空间呈现三室两厅一厨三卫的空间分布。采用法式复古+舒适自然的风格,点缀生灰色,使整个空间的氛围更浓郁,将空间进行了合理的分割。以经典复古为主要特色,以家具布置与空间的密切配合为构思,使居住空间更自然可观。
户型分析

客厅
采用半开放式设计,客厅书房一体,空间宽敞而又不失私密性。阳台纳入室内,木纹砖通铺,形成更为整体的空间结构,矮柜代替电视柜,吊顶设计优雅的角花造型,充分利用房体高度,营造视觉上高敞宽阔的效果。



餐厅
餐厨以复古法式+自然原木色的基调,油画做为点缀。每一个细节处都在上演着一种浪漫与幸福,定制的艺术玻璃窗纱,浅浅的色调搭配精致的法式吊灯,散发着法式的柔情。

厨房
简单大方的线条造型凸显出厨房的条理与简洁。橱柜和台面色调的碰撞,一浅一深、的色调搭配看似无意似有意。

书房
以经典复古为主要特色,以家具布置与空间的密切配合为构思,使居住空间更自然可观。

卫生间
卫生间采用三分离的布局设计,划分了空间的使用区域瓷砖以半墙的形式去铺贴,将复古的黑白搭配展现出一份冷静中蕴含的优雅。

主卧
卧室内雕花石膏线与色块点缀,在原有空间形态之上做细部塑造,留住静谧温雅的氛围,却又胜在复古韵脚。从视觉感触和材质出发,营造了一个浓郁的复古氛围和空间的美观性,同时也提高了空间的层次感。

这样装修风格你喜欢吗?如果您有装修设计的需求可以联系我们,我们一定给您设计一个满意的家:
瑞高装饰联系电话:400-0396-158
瑞高装饰官网:https://www.ruigaosj.com/