这是一套86㎡的两居室,新房的装修用了差不多四个月的时间,过程还算比较顺利,不仅颜值很高,而且实用性也很强,特别是给客厅阳台做的一个改造,非常的成功,等于是让家里多出了一间卧室,现在来跟大家分享一下。
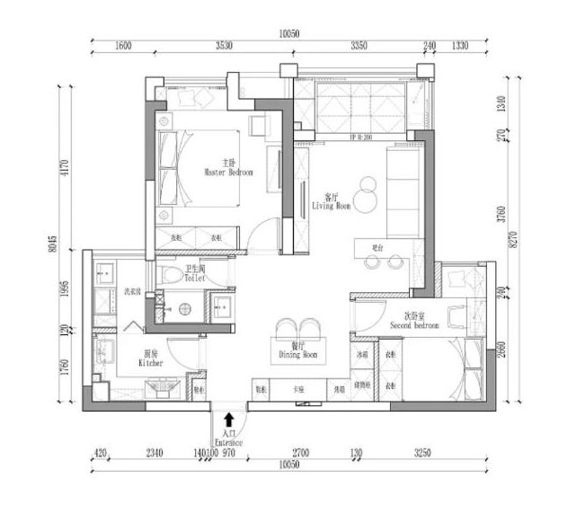
户型图

户型比较常规,并不是什么奇葩户型,从平面布局图上面就可以看到,客厅的阳台改造成了小型的卧房,然后把晾晒的区域移到了厨房外面的小阳台,虽然面积小了一些,但还是可以接受的。
入户and餐厅

户型本身就很紧凑,所以玄关的面积也比较小,甚至严格意义上来说压根就没有玄关,现在的玄关区域不过是我们通过在门口的左右两边各做了一个顶天立地的鞋柜强行划分出来的。

大门一进来就是我们家的餐厅,靠墙做了一排卡座,为了保证观感上的对称性,在卡座的左边也做了一个高柜,把烤箱安装在了这里,帮厨房分摊了一点空间。餐桌椅都是现代风的造型,特别是餐桌,虽然台面石仿大理石材质的,但是非常的轻薄,既有质感也不会显得厚重,非常的漂亮。

家里的色彩元素只有黑白灰,甚至连黑色都很少,大部分都是白色和灰色,给人一种高冷的感觉,可能有些人会不喜欢,但是我和老公真的很迷这种范,我们都喜欢在这种酷酷的感觉。
客厅

客厅做了一个小型的吧台区域,平时我和老公会在这里喝喝酒、聊聊天,有时候还会工作看书。

吧台的这一面也没有浪费,做成了一个开放式的储物柜,各种杂物都可以放在这里。

灰色的墙面,灰色的布艺沙发,灰色的装饰画,虽然都是一样的颜色,但是不同的深浅,让空间里的色彩元素变得有了层次感。

电视背景墙则是打满了柜子,大部分的柜子都是安装的弹簧器柜门,这样就不用安装明面上的门把手,整体的观感就显得舒服了很多。

阳台的区域其实改动也不复杂,左边做了衣柜,右边则是做了一个简易的书桌,中间就是现在很常见的榻榻米,不仅储物功能很强大,平时还能当一个简易的客房使用,真的是非常实用的设计。
厨房

厨房的墙面和地面都是灰色的瓷砖,白色烤漆工艺的橱柜和吊柜,搭配上白色的石英石台面,整体显得简洁又大气。
卫生间


虽然我们家的卫生间面积不大,但是我还是坚持让设计师给做了一个三分离,盥洗区、坐便区、淋浴区全部都是独立的,因为这样的卫生间效率实在是高很多,而且还方便做卫生,一切都给人一种井井有条的感觉。
主卧

主卧的装修比较简单,追求的是一种舒适、温馨、静谧的感觉,我和老公都觉得休息的场所这样就可以了,能够让人觉得放松就足够了。

家具看起来很简单,但每一个都是精挑细选回来的,真的很喜欢。