项目面积115平,项目坐标:上海·闵行区,设计师说在前面:这是一套年轻夫妇的婚房,结合户型、预算、功能考虑,设计师将法式元素与现代机能相结合,以打造更松弛治愈的家居环境

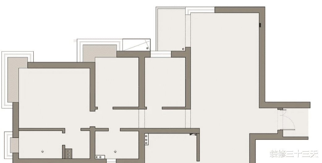
▲ 原始结构图
户型分析:
①原始户型入户一条长走道直通主卧,纵深太长,隐私欠缺;
②每个卧室都比较紧凑,收纳空间不足;
③厨房和卧室都有一个小阳台,破坏了空间的整体性,尤其是厨房阳台把操作台分割开了,既不方便还削弱了空间利用率;
改造亮点:
①厨房原本被小阳台切分,一分为二,重新整合,一部分和餐厅结合,打造餐厨一体,一部分让渡给卫生间过道,实现卫生间三分离;
②书房内推,增加了水吧台和储物间,丰富过道功能;
③马桶间独立,和干区结合;
④次卧作为偶用客房,为了增加储物,设计榻榻米+衣柜,调整门洞至主卧远端,同时让渡处一部分过道空间给主卧;

▲ 玄关设置鞋柜,中部和底部留空,方便实用

▲ 整个客厅以奶油色为基调,加入精致的雕花灯盘和PU线条,散发出法式独有的优雅高级

▲ 摆脱传统沙发靠墙的形式,增加装饰壁炉,更具互动感的围合型布局,让这里变得更加松弛休闲

▲ 壁炉上方点缀复古装饰镜,成为点亮生活仪式感的一角

▲ 壁炉为空间增添暖意与格调

▲ 线条优美的草帽吊灯尽显优雅气质

▲ 墙角的屏风,丰富了错落层次,也提升了装饰质感

▲ 客厅唯有一个偏阳台,地面抬高,界定空间,又借结构穿插与电视柜结合,让四季风吟、窗景变幻成为生活布景。加入复古玻璃隔断,有意破除对称造型,在延展背景墙的同时让光线自在流动

▲ 阳台改造成健身休闲区

▲ 餐厅,增设中岛吧台与餐桌相连形成洄游动线,背景设置拱形餐边收纳区,同时兼具入户端景功能

▲ 餐厨一体化设计打破了传统厨房的封闭性,家人和朋友可以围坐在一起,方便交流,增进感情

▲ 厨房整体以白色为主,简洁清爽易打理,高低台设计符合人体工程学

▲ 厨房打开和餐厅结合,提升通透感之余,让渡出一部分空间给卫生间过道,以玻璃替代实墙隔断,呼应整体风格

▲ 餐厨区看向客厅视角

▲ 马桶间独立,和干区结合,客人用卫生间时不用进到更深的私区空间

▲ 干区看向书房视角,台盆侧面还做了一组薄柜补充收纳

▲ 书房看向阳台休闲区,左侧书柜分为上下两部分,藏露结合兼具美观性与实用性

▲ 由于承重结构的限制,主卧格局可变性不大,在有限的空间中,墙顶柜同色,避免视觉压缩

▲ 飘窗旁增设一组书架,铺上垫子以后,这里就可以作为休闲阅读角