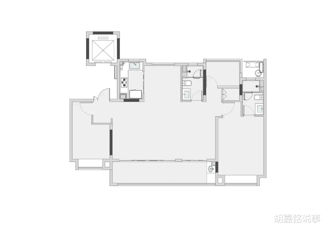
129㎡中古风

第一套案例是129㎡的三居室,业主是一对新婚夫妻,房屋也是作为婚房来装修的;喜欢中古的风格,需要多收纳空间、保留两个常用卧室一个多功能卧室;并希望拥有阅读式的客厅。
功能设计


左右滑动查看更多
设计改造:①横厅划分部分空间给主卧,设计衣帽间。②同时与衣帽间相邻的阳台部分,设计为独立家政区。③保留两个卧室,一间卧室设计书房+墨菲床。
④电视墙一侧的阳台,定制猫爬架,供猫猫生活娱乐。
01客厅




③沙发墙设计石膏线、护墙板、壁炉装饰,提升家居精致度。
④阳台家政区与客厅之间设计折叠门隔断,提升空间美观度。
⑤顶面与墙面交接处,设计拱形弧度造型过渡。
02餐厅


设计亮点:①餐厅选择圆桌,占面积小,容座率高。②靠墙定制餐边柜,结合岩板台面,兼顾实用与质感。
③过道墙面设计石膏线、挂画、石膏制品装饰。
03主卧

设计亮点:①卧室与卫生间之间,嵌入玻璃砖装饰,提升空间通透度。②床头背景墙设计石膏线、护墙板墙裙装饰。
③保留飘窗,设计为休闲区。
04卫生间

设计亮点:①主卫用淋浴房做干湿分离,好打理,也更好用。②选择两种颜色的瓷砖,设计墙裙,提升设计层次感。
05阳台

143㎡法式风

第二套案例是143㎡的户型,业主一家四口居住;房屋是精装房,希望在尽量不动原始布局的情况下进行改造,喜欢精致浪漫的法式风格。
功能设计


左右滑动查看更多
设计亮点:①原始户型基本没动,保留三个卧室。②横厅功能设计为客厅+书房,提升家庭阅读氛围。③主卧床尾定制一整排衣柜,丰满收纳力。
④主卫与床之间设计梳妆台+隔断,避免卫生间门正对床的尴尬。
01客厅




设计亮点:①电视背景墙设计岩板装饰,增加家居质感。②横厅与阳台之间用玻璃推拉门隔断,不影响室内采光。
③沙发后方设计开放式阅读区,定制拱形柜体,增加书桌,可以满足一家人的阅读需求。
④墙顶交接处用钢琴石膏线装饰。
02餐厅

设计亮点:①餐厅墙面设计护墙板+挂画装饰。②餐厅与客厅之间设计拱形门+石膏梁托装饰。
③顶面设计石膏线+石膏灯盘装饰,增加法式精致感。
03主卧



设计亮点:①床头背景墙设计护墙板+壁布装饰。②床尾定制一整排柜体,并设计拱形线条装饰。
③与主卫之间增加书桌/梳妆台+隔断+柜体,增加功能区,也解决主卫正对床的尴尬。
04次卧

●设计亮点:次卧墙面设计壁布装饰,提升家居质感。
05次卧

●设计亮点:另一间次卧,定制收纳柜+榻榻米床+书桌+护墙板墙裙,空间利用率最高。根据业主的需求,结合房屋的情况,私人定制设计,让房屋有舒适也有个性~