众力资讯网

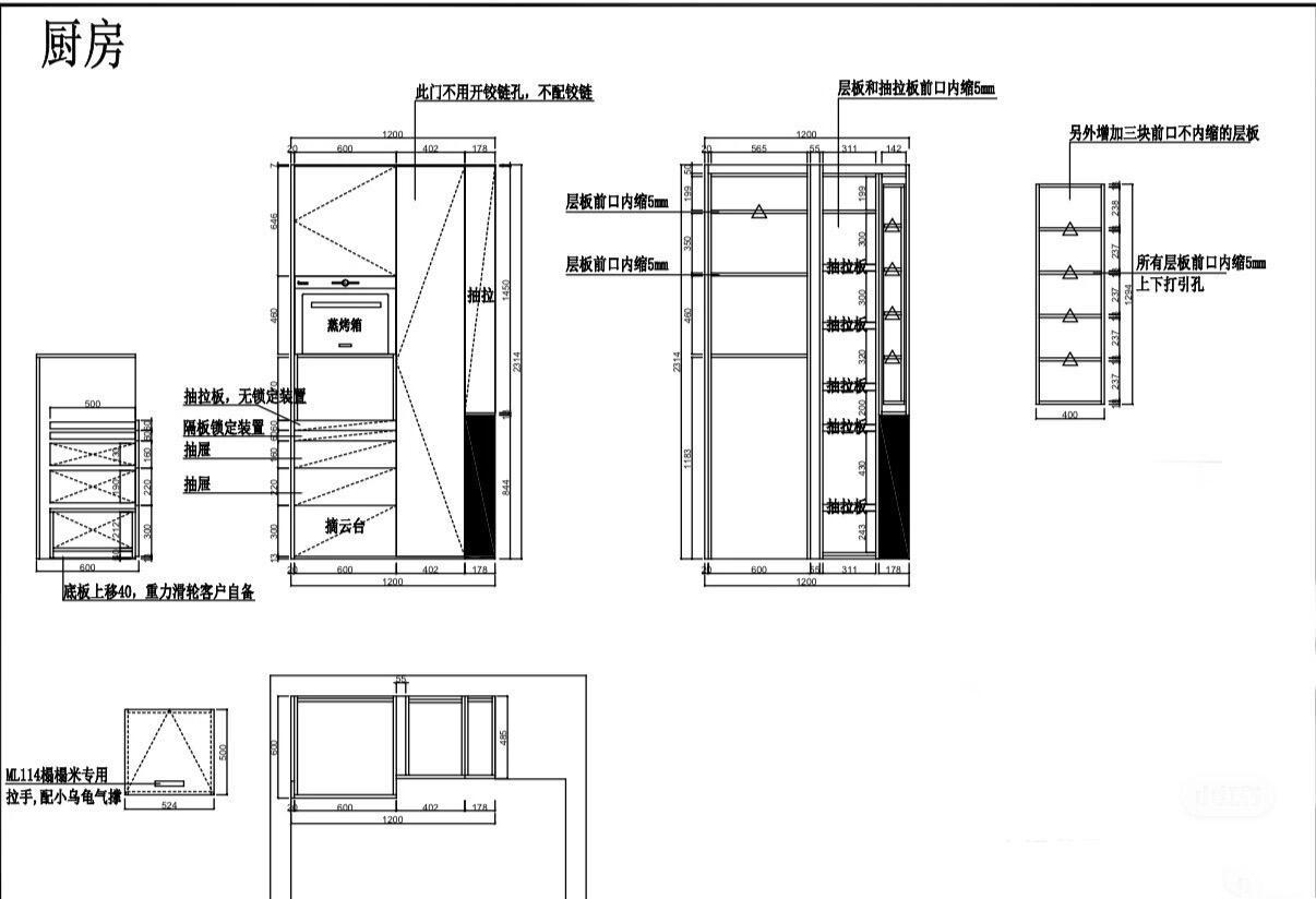
厨房有这样一个收纳柜,太强大了! 小厨房真的是寸土寸金,每一寸都要抠着用 有这样

厨房有这样一个收纳柜,太强大了!
小厨房真的是寸土寸金,每一寸都要抠着用
有这样一组收纳柜,简直夯爆了。
这个角落虽然只有0.6㎡
但一组高柜,就把这块空间给盘活了
尺寸图给大家附上,抄作业吧
案例来源:@川川子