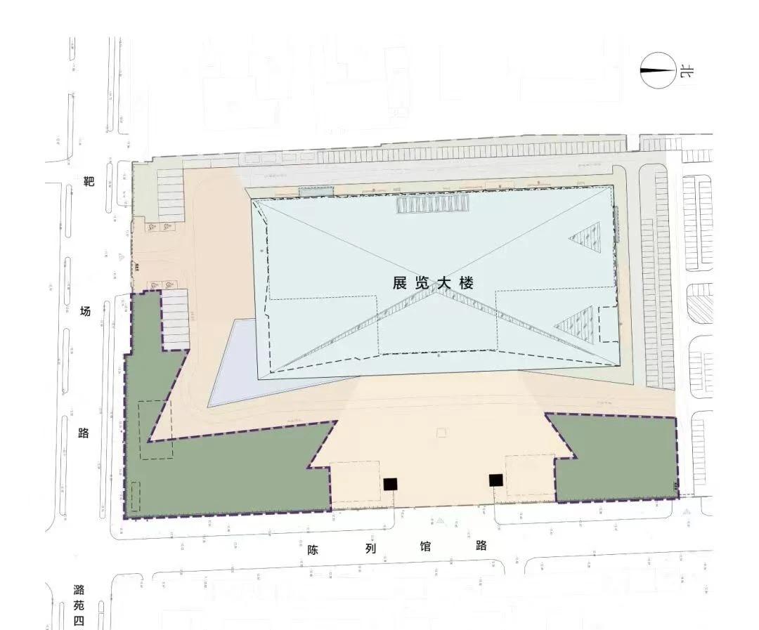
军博要在通州开分馆啦🔥 今天,与大家分享一个激动人心的消息:军事博物馆在通州建分馆啦!经中央军委批准,中国人民革命军事博物馆通州分馆,已在原通州民兵武器装备陈列馆基础上全面启动建设工作。一座全新的军事文化殿堂,正拔地而起。 分馆位于北京市通州区焦王庄陈列馆路25号,分馆的核心建筑——展览大楼,造型以古代兵器箭镞形象为主元素,以方正造型为主,辅以斜向线条增强力量感,军事特色鲜明,彰显新时代人民军队敢打必胜的精气神。 共有三层,将于2027年跟大家见面,点个关注,一起约展哦。 刘瑶老师 北京研学 值得一去的博物馆 航空航天 军舰 军事 必打卡博物馆 探索博物馆




