众力资讯网
户型优化|130平三居室户型|优化前后对比
2025-11-16 00:08:38
设计师人厘米酱
家居
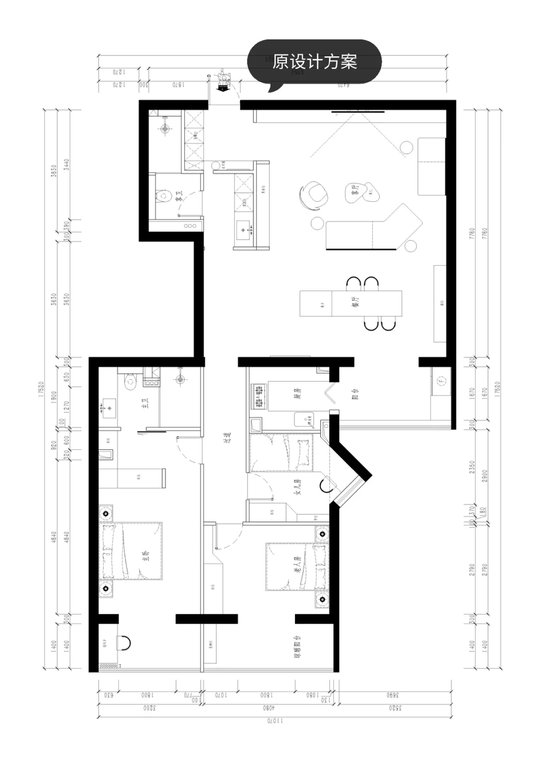
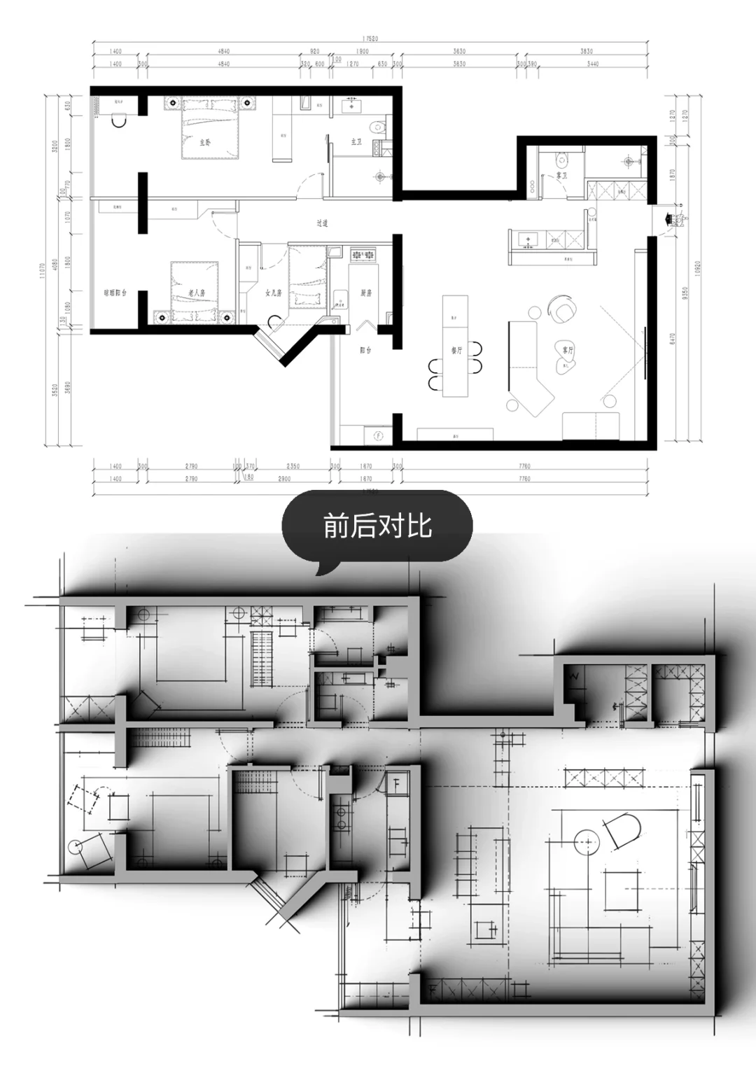
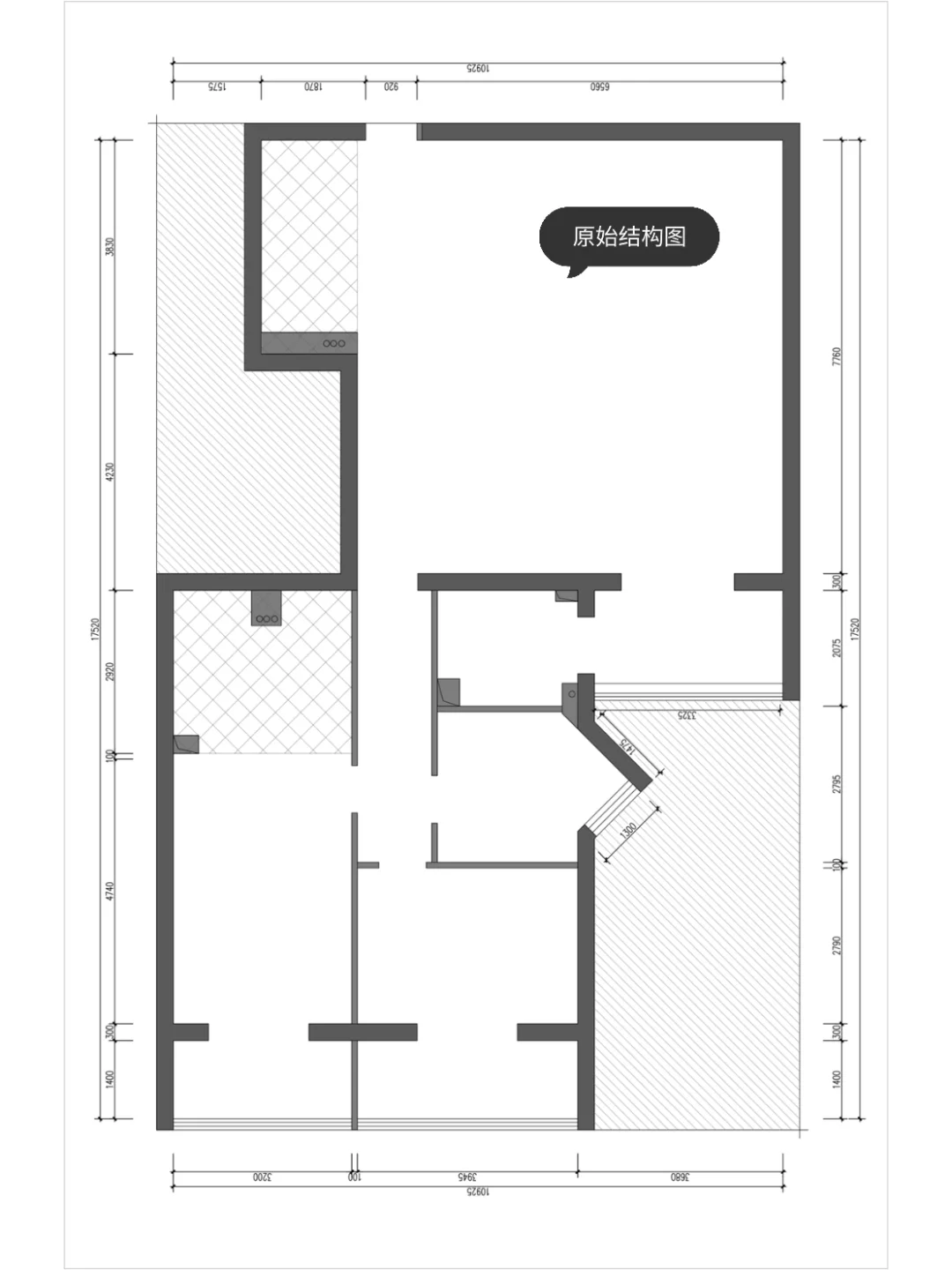
来自小红委托 设计需求: 1、五口之家、家庭成员,夫妻两人,父母,一个女儿 2、保留三个卧室,原设计厨房动线离卧室太远,公卫离卧室太远,玄关太小 3、想增加吧台和西厨空间 4、每个卧室都要有书桌,主卧需要衣帽间,卫生间 5、尽可能多的储物空间 来看看优化后效果吧![偷笑R][偷笑R][偷笑R]
猜你喜欢
神仙户型,三口人选这户型!①整体格局:本三居室户型方正紧凑,动静分区明确。客
2025-11-13
盛邦评文化
标签:
卫生间
厨房
玄关
卧室
揭秘280㎡亲子宅最奢侈的布局,全靠“洄游动线”救场,绝了!
2025-11-19
里土包子设计师
这两个户型,价格一样你会怎么选?叠墅大平层[大笑][大笑][大笑]
2025-11-05
怜云夜谈汽车啊
这户型也太完美了吧!🏡
2025-11-07
有匪君子尔尔
标签:
阳台
这才是我心目中合院,高贵端庄典雅带三分土味儿。有些房子太雅致了,与农家小院子,不
2025-11-09
里二户型改造说
标签:
后院
烧烤
你看,真正有大福气的户型,多少半是小房办大事,115㎡长得不好,面积不大,靠自己
2025-11-20
里二户型改造说
标签:
客厅
到底该咋理解合院这东西?流行不一定对,真像是450㎡硬扛四合院的标准,自建房的初
2025-10-24
里二户型改造说
标签:
厨房
卧室
这小房子有出息,小厅不长,但倒腾的快,150㎡这个作品,真的是我心中的冠军,一半
2025-10-24
里二户型改造说
热门分类
推荐
热榜
军事
NBA
体育
社会
明星八卦
娱乐
财经
科技
汽车
历史
国际
游戏
动漫
公益
搞笑
商业
互联网
数码
国际足球
房产
家居
时尚
科学探索
职场
育儿
股票
教育
影视
情感
热点
中国军情
武器
中国南海
中国足球
亚洲杯
科比
综合体育
CBA
投资
楼市
大咖秀
外汇
创业
风口
SUV
豪车
概念车
优惠
新能源
美国
欧洲
朝日韩
俄罗斯
孕期
街拍
恋爱攻略
婚姻
正能量