众力资讯网
户型优化!一个没得挑!三个不会挑!
2025-11-15 00:19:52
设计师人厘米酱
家居
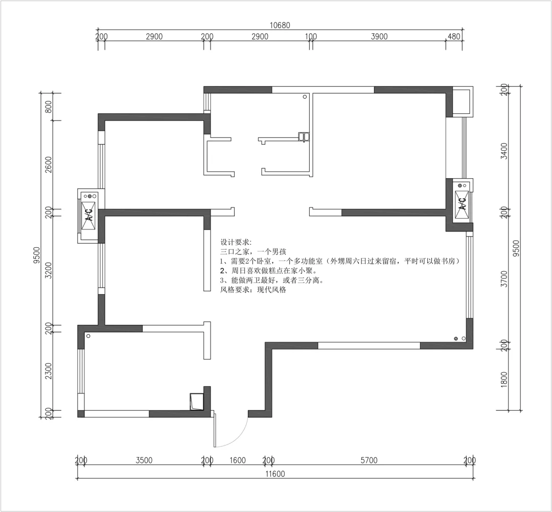
从前的烦恼,只会做一版方案,客户说,啥意思,一个!我怎么看,就一个,怎么对比,你是不是没料呀! 现在的烦恼!哇哇,三个方案,四个方案,不会吧!十一个方案,我看哪个都不错,这个功能好呀,这个分区不错,我不会挑,好烦哦! 来看看设计要求 三口之家, 一个男孩 1、需要2个卧室,一个多功能室(外甥周六日过来留宿,平时可以做书房) 2、周日喜欢做糕点在家小聚 3、能做两卫最好,或者三分离 风格要求:现代风格
热门分类
推荐
热榜
军事
NBA
体育
社会
明星八卦
娱乐
财经
科技
汽车
历史
国际
游戏
动漫
公益
搞笑
商业
互联网
数码
国际足球
房产
家居
时尚
科学探索
职场
育儿
股票
教育
影视
情感
热点
中国军情
武器
中国南海
中国足球
亚洲杯
科比
综合体育
CBA
投资
楼市
大咖秀
外汇
创业
风口
SUV
豪车
概念车
优惠
新能源
美国
欧洲
朝日韩
俄罗斯
孕期
街拍
恋爱攻略
婚姻
正能量