众力资讯网
村中自建房生活品质的蜕变
2025-11-13 08:07:07
设计师人厘米酱
家居
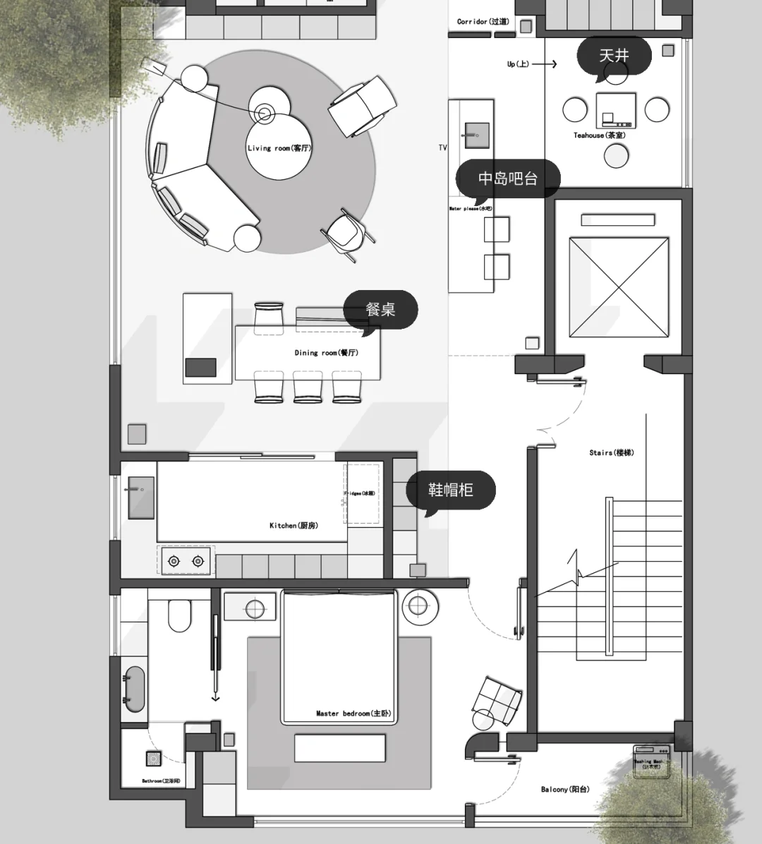
设计要求: 一家六口,要求四房,乡下自建房,五层以下出租为主,六层自住,只有过年才回来,设计方向往度假方向进行。男业主主要想要有个天井,衣柜空间不需要多。 总共180平方
热门分类
推荐
热榜
军事
NBA
体育
社会
明星八卦
娱乐
财经
科技
汽车
历史
国际
游戏
动漫
公益
搞笑
商业
互联网
数码
国际足球
房产
家居
时尚
科学探索
职场
育儿
股票
教育
影视
情感
热点
中国军情
武器
中国南海
中国足球
亚洲杯
科比
综合体育
CBA
投资
楼市
大咖秀
外汇
创业
风口
SUV
豪车
概念车
优惠
新能源
美国
欧洲
朝日韩
俄罗斯
孕期
街拍
恋爱攻略
婚姻
正能量