今年8月,太原市行政审批服务管理局网站发布了关于太原市鲁艺中学校项目建设工程规划设计方案的公示。

直到近日,太原市行政审批服务管理局网站再次发布了关于太原市鲁艺中学校项目建设工程规划许可证的公告。

公告显示:根据《中华人民共和国城乡规划法》《中华人民共和国行政许可法》等有关规定,现将我局依法审查核准的太原市鲁艺中学校项目建设工程规划许可证予以公告。

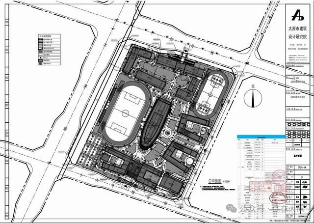
项目位于太茅路以东,十四号线以南,十六号线北街以北。建筑性质为公建,建筑功能为学校,结构形式为框架结构。

项目总用地面积106778.36㎡,总建筑面积120021.66㎡,建筑内容包含了小学、初中及高中的教学楼、实验室,以及文体中心、食堂、宿舍等项目。其余详细获批内容见下图。


据了解太原市鲁艺中学校是由山西华阳教育团队全权运营管理的一所全日制民办学校。校址位于太原市尖草坪区钢园北路10号,占地230亩。
