众力资讯网

装修设计图是“智商税”?8个血泪真相,看完再定不后悔

装修前,很多人会纠结:要不要找设计师出图?这笔钱花得值吗? 有人觉得“设计图是智商税”,没做设计就直接签了合同,结果装到

装修前,很多人会纠结:要不要找设计师出图?这笔钱花得值吗?

有人觉得“设计图是智商税”,没做设计就直接签了合同,结果装到一半发现——天花有横梁,需要加5000做吊顶;砌错墙位置,返工多花了1000了……整个装修过程是“边装修边改方案”,预算超了一半不说,工期还耽误了大半年。

装修有没有设计图,决定了每个阶段的效率、成本和最终效果,哪怕我自己是设计师,我装修时也是提前准备了设计图。至于缘由,下面我来聊聊不同装修阶段,有无设计图的不同体验:

1、报价阶段:透明vs陷阱

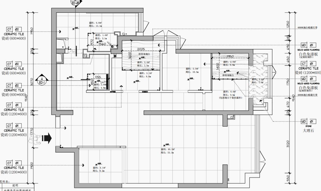
有设计图:所有项目——吊顶造型、墙面处理、水电点位都白纸黑字画在图上——比如“双眼皮吊顶35m,单价100元/m,总价3500元”、“电位60个,单价80元/个,总价4800元”……后期施工时没增项漏项空间,最终花费和报价误差不超过5%。

没设计图:报价纯靠户型图来“猜”,为了签约承担,装修公司常常会故意漏报、少报项目(比如只报刷漆,不报墙面找平;报了吊顶面积,却忽略复杂的造型费用;材料标配最丑的款式,换一个要“升级费”)。这些“坑”会在施工中一个个跳出来,变成“额外支出”,让你的预算失控。

2、买主材时:风格统一vs乱买乱搭

有设计图:图上已清晰标明了瓷砖款式、地板与柜子的颜色纹理、材质。你是拿着“清单”去“按图索骥”地采购,目标明确,效率极高。店员的推荐,你可以用设计图来判断是否匹配,避免被带偏。

没设计图:逛市场时看一样喜欢一样,觉得这个瓷砖好看,那个地板也不错。结果搬回去才发现,单看都很美,凑在一起却风格打架、颜色冲突,钱花多了效果反而差了。

3、打拆与砌墙:尺寸准确vs反复折腾

有设计图:墙上或地面提前画好线,明确的拆除和新建位置,工人只需按图施工,尺寸、位置分毫不差。空间格局从第一步就被精准奠定。

没设计图:全凭口头描述,“这里拆一点,那里砌一堵”。结果拆多了要花钱补,没拆到位又得再叫工人来返工。砌墙时尺寸错了哪怕5公分,都可能导致后期施工冲突,比如卧室砌墙偏了了10cm,原本能放1.8m床的房间,最后只能放1.5m床了。

4、水电阶段:点位合理vs插座遗憾

有设计图:家具的尺寸和布局确定了,图纸上的每一个开关、插座、水路接口都能明确定位,确保插座不被床头挡住,开关在顺手的位置,厨房台面留有足够插座。

没设计图:只能凭感觉预留。入住后才发现,沙发挡住了居中的插座,床头插座被床头挡住,厨房小电器多得需要拉插线板。这些遗憾,一旦完工,几乎无法挽回,将成为日后每一天的烦恼。

5、贴砖阶段:排版美观vs收口尴尬

有设计图:设计师会出具瓷砖铺贴图,规划好起铺点、如何对缝、如何把那些难以避免的小条砖藏在家具或角落。木工吊顶的造型、尺寸、收口都有大样图,确保造型美观、比例协调。

没设计图:工人怎么方便怎么来,结果客厅门口出现了5cm的小窄条瓷砖,一进门就被“丑哭了”。

6、木工阶段:造型协调vs收口尴尬

有设计图:设计图上明确“客厅四周做吊顶(高度30cm,宽度20)”,木工按图施工,吊顶尺寸协调,没有压抑感。

没设计图:你让木工“做个显档次的吊顶”,结果木工做了多层叠级吊顶,还加了复杂的雕花,看着抽象不说,2.8米的层高做完只剩2.5米,还显得特别压抑。

7、墙面阶段:颜色和谐vs颜色翻车

有设计图:墙面用什么材料、尺寸比例都有标好。刷漆的颜色都有对应的色号参考,甚至可以大胆采用拼色、分色等艺术手法,效果可控且高级。

没设计图:盲目跟风网红色号,选了“网红奶茶色”,却忽略了自己的风格不一样,刷完后变成土黄色,和家具完全不搭,最后只能重新刷漆,又花了3000元。

8、家具软装阶段:完美收官vs功亏一篑

有设计图:在效果图阶段,你已预览了家的最终模样。家具、灯具、窗帘、挂画的尺寸、款式和颜色都已经过整体规划。购买时只需按图索骥,便能轻松实现和谐统一的整体效果。

没设计图:精心挑选的沙发,因尺寸太大而显得空间拥挤,喜欢的茶几风格与整体格格不入。硬装与软装彻底脱节,导致投入巨大的装修,最终效果却功亏一篑。

总结:设计图,究竟是什么?

有无设计图,绝非几张图纸的差别——有设计图的装修,就像“有地图的旅行”,每一步都清晰明确,能避开80%的坑;没设计图的装修,就像“盲目探险”,全靠运气,很容易走错路。它将直接影响你的预算、最终效果以及心力交瘁程度。

所以,即便我自己是设计师,我自己家装修,我也准备了一份设计图纸,它让我与施工方、材料商能在同一频道上精准沟通,避免误解,最大程度地保证最终落地的效果。