当城市地景,总是兜绕与高楼毗邻时,为了捕捉美好的瞬息光影,在这间使用面积59㎡小户型中,带入轻Loft风格,让渡直入的天光,使公领域得以拥有愈加清新、敞亮的简静感。
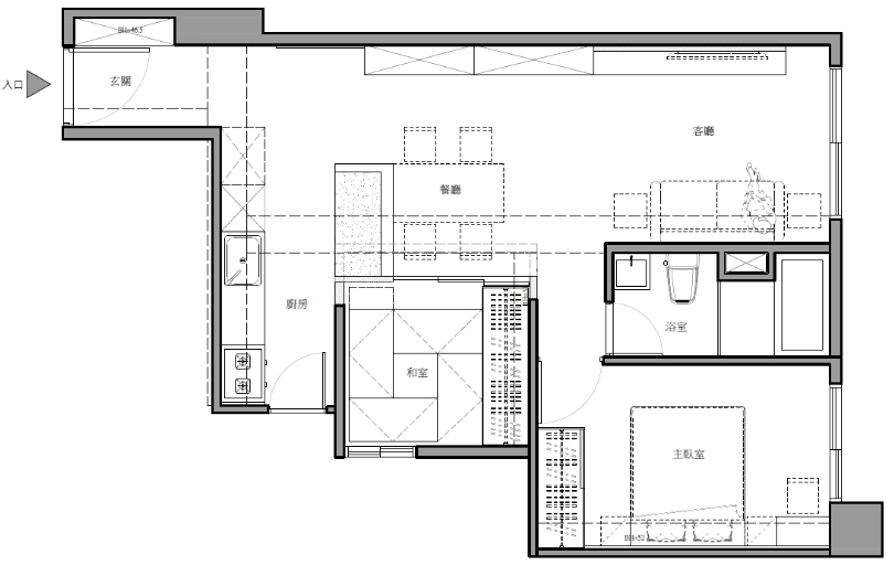
户型图
使用面积59㎡小户型,单身男子独居,重新梳理空间动线,将每一笔都饱含着现代和风,带入一种细腻感,考量本案坐落在楼距宽敞、视野无限的高楼中,揽入外景的公园绿意,衬托与天光况味交织的底调。
入户
入户受原有空间限制,沿着房屋柱体以切齐的手法打造悬空鞋柜,补足空间的畸零落差。同时中间位置留有40公分的置物平台,搭配暖色光源,整体仪式感还不错。地面和墙面采用微水泥设计,冷暖交替效果挺耐看的。

地面材质的过渡,实现入户到客厅的转变,墙面贴覆一面倒圆角洞洞板,不仅装饰了墙面,还提升了收纳。
客厅
客厅降低了色彩配置,减少了色块的层层堆叠,避免造成切碎区域,加深各域之间的视觉延伸感。同时,细心拿捏软装色调的搭配,将原始美感、手触肌理一并考量,让硬软装达到平衡之美,以达到放大空间张力效果。

楼高优势,不仅让采光进入,更衬托了两条轨道灯,单侧高柜除了收整丰沛的收纳物,重复的方格子,使立面一展利落感,梳理了公区动线脉络,让空间保有最大自由度。

电视墙设计呼应了洞洞板,倒圆角规避了锐利感,视觉柔和许多。浅淡灰色涂料装饰电视墙与大白墙形成层次感。少许绿植的点缀,为居家增添一抹活力。
餐厅

开放式餐厨设计,以90公分中岛台做分隔,面向厨房一侧做收纳,弥补厨房收纳空间的不足。中岛台以仿清水模漆涂刷,增添些许粗犷质感。
和室

和室采用局部架高40公分的设计,既可以作为多功能室,又为居家增加不少收纳。方格滑门设计,恰如其分的视觉底调,流动着温润和风。
卧室
卧室柔和中带静谧,宽敞的落地窗为卧室注入充足的采光和窗景。背景墙灰色涂料和原木材质结合,视觉更有层次。

左右两侧不对称设计,靠窗摆放简易书桌,靠近衣柜摆放床头柜,满足不同的使用需求。床头灯很别致,可以根据需求旋转调整光源。