
户型2262
回农村去建个养老小院,和心爱之人一起携手共度余生,想必是很多人的愿望。
今天这套美式别墅ZJ-2262,这套别墅尖顶的设计,搭配上文化石和红色的琉璃瓦,带有浓厚美式乡村别墅的优雅气质。它的内部布局也是舒适够用,11米面宽的客餐区,空间通透大气;多朝南卧室,居住舒适度也不差;静谧的书房,看书、学习也不必担心被打扰。

户型基本信息
占地尺寸:11.7m × 10.8m
占地面积:135.14㎡
建筑面积:246.33㎡
建筑高度:11.27m
建筑结构:砖混结构
建筑情况:设4卧室 2厅 2卫 1厨 1书房
平面布局图:
一层
一层客餐区一体化设计,且面宽达到了11米,虽是小户型,但看起来十分宽敞、大气。

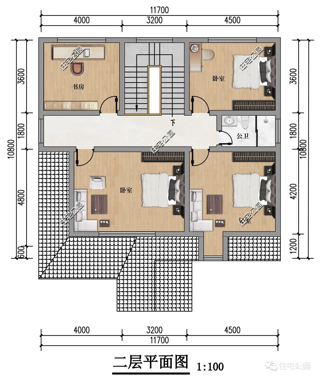
二层
二层主要是家人的生活居住区域,3间卧室的配置也完全够用。
西北侧设有1间静谧书房,不管是大人办公,还是小朋友看书学习都很方便。
