今年的兰州楼市,城关雁滩和安宁中央商务区轮番轰炸,很多人等七里河的新项目等的都焦灼起来了。
终于,保利的新项目,它来了!
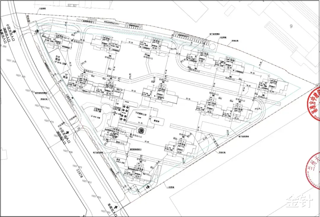
最近,保利天珺的总平图公示了,保利TOP级天字系第四代住宅,终于要真正亮相兰州了。

保利天珺总平图 来源@兰州市自然资源局
两个月前,经过181轮激烈竞拍,保利以47790万元,成功竞得七里河马滩约54亩居住用地。

保利天珺位置示意 制图@指兰针
这场土拍,可以说是兰州近几年竞争最激烈的一次,可见黄河S弯,滨河马滩,南岸金线位置有多么的炙手可热。
成功竞得土地的当天,保利打出标语:“再启黄河湾区,共绘金城山河”。
就冲这拉满的气势和信心,很多人纷纷猜测,保利的新项目一定不简单。
事实上,它确实很不简单。
根据公示的总平图,保利天珺项目建筑面积约13.4万㎡,其中住宅建筑面积88202.61㎡,商业配套1142.3㎡。
项目遵循扇面地形特征布局11栋22-26F高层住宅,其中4#、6#、8#楼为两个单元,其他楼栋均为一个单元,共计681户。
社区内部规划有多处商业、景观亭、下沉庭院等公共配套,且多栋住宅楼均是首、二层局部架空的设计。
不计容建筑面积包含1074.23㎡的社区嵌入式服务综合体、11461.09㎡的户属空中花园、1601.01㎡的架空层等。


保利天珺主要指标 来源@兰州市自然资源局
大概数了一下,保利天珺园区内居然有7处架空层,很难想象,未来这个项目的配套空间会有多么丰富,毕竟目前兰州的各个项目,还没有谁能做到这种程度。
地块整体的容积率低至2.5,同时占据低密、河景、核心优势,加之保利天字系四代宅的产品力,这个项目确实值得大家狠狠期待。
保利天珺是保利高端产品线,天字系产品中的佼佼者,根据克而瑞发布的榜单,天珺已连续六年获豪宅产品系美誉。
在广州、宁波、三亚、西安等地,保利天珺已成为一个又一个经典IP,它代表的就是顶级地段+顶级配套+顶级产品。
而兰州保利天珺所在的马滩,是兰州一心两翼战略中三滩新城的核心引擎区。
这里是兰州城市向西、拥河发展的主战场,承载着城市界面更新、高端产业聚集、优质资源导入的核心使命。
马滩的滨河地带,也是兰州主城区,最珍贵的滨河低密开发区域之一。
保利天珺的布局,就是保利甘肃提前卡位西站-奥体-马滩黄金三角区的核心增长极,锚定城市未来价值制高点。
在深耕兰州市场的12年时间里,保利甘肃在兰州各区已筑造10个经典项目。
其中,七里河就有5个,占据了一半,保利也是在七里河开发项目最多的央企。所以,在这里,保利就好像拥有天然的主场优势。
目前,兰州市场上的四代宅、新产品越来越多,无论是购房者还是开发商,都在用一种超配的眼光和思维对待新项目。
从此刻开始,保利领衔下的七里河楼市要正式开启第四代品质住宅的角逐了。
保利天珺的入局,也代表着保利在兰州乃至整个西北市场的住宅产品力再一次上探。
这个项目,占位、定位都是顶级的。
接下来,就看它还能给兰州楼市,带来多少惊喜了!