众力资讯网

128平古典法式混搭横厅三室

套内面积128平,项目坐标:天津·河东,设计师说在前面:对于家来说,家的意义在于相互陪伴,共赴热爱。温暖惬意,被爱包围,

套内面积128平,项目坐标:天津·河东,设计师说在前面:对于家来说,家的意义在于相互陪伴,共赴热爱。温暖惬意,被爱包围,无事伴心弦,所愿皆如念。

“既好看又好用”,来自女主人的评价,很简单的一句话,其实背后蕴含了从平面构思,到落地每一个节点,每一个选材大件小件方方面面细节不放过。

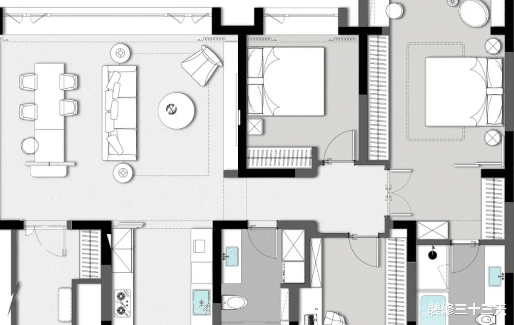
▲ 平面布置图

▲ 步入家门,映入眼帘的深邃石材纹理,让人第一时间就能感受到经典古典主义的气质,演绎界而未界的艺术玻璃,经典的窗格元素散发出奇妙的神秘感,不仅是区域划分,同时强调了玄关的独立性

▲ 客餐厅为大横厅格局,整体宽敞大气,吊灯是经典法式风格的灵魂,作为客厅的视觉焦点,星星点点的暖色光源,让软装婉转与细腻的线条,凸显出浪漫优雅的味道,法式雕花沙发与空间氛围相得益彰

▲ 餐厅背景一抹清新的翡翠绿,搭配纯白的餐桌、跳跃着的白色吊灯,用餐时光本身,也随之变得轻松活跃

▲ 餐厅增设岛台实现功能多样化,利用高低差在岛台侧面安装轨道插座,满足餐桌用电需求

▲ 法式珍珠项链吊灯尽显气质

▲ 沿墙定制整排餐边柜,留空处满足小家电的使用

▲ 餐厅小景

▲ 厨房U型布局,操作动线流畅,吊柜下方嵌入灯带补充操作台照明

▲ 奶油风橱柜点缀金色小把手,精致有范

▲ 拱形门洞通往私领域空间,更具仪式感

▲ 过道看向客餐厅视角

▲ 次卧,格子结构吊顶凸显立体层次,使用浅咖米灰色与整屋氛围一致

▲ 床头点缀金色线性壁灯营造氛围

▲ 推开仪式感的双开门进入主卧套间

▲ 最具时代代表性的罗马柱,分割出了连续的拱形门洞,再一次营造法式古典美的气质

▲ 主卧采用了暖色调复古地板,融合背景墙的浅咖色系,共同营造了安心的睡眠氛围

▲ 背景墙线条勾勒造型与家具精致的法式雕花呼应

▲ 床头小景

▲ 床尾打造整排大衣柜,靠窗处规划梳妆区

▲ 卧室看向主卫视角,过道也做满了收纳柜

▲ 主卫,黑白拼花地砖让人眼前一亮,壁挂马桶搭配悬空浴室柜,不留卫生死角,利用壁挂马桶水箱上方空间还做了储物柜

▲ 金色的细节增加轻奢感