这套住宅位于台湾新北
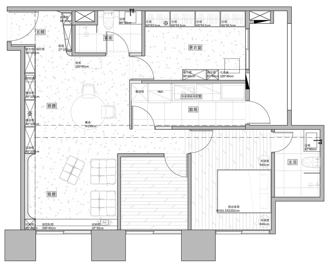
面积:86㎡(套内)
格局:3 房 2 厅 2 卫
居住人数:2 大

1. 玄关设计:进门,自玄关起即是对家的诠释与生活体现的开始
以纯白无瑕之笔围塑轻巧的转折
其中一侧悬挂似清澈湖面的明镜
延伸空间视觉感之外
也为留白的寓所带来波浪曲线的律动无阻朗阔一路串连成排白色立柜
妥贴稳当收拾起双人新居所需的生活物件
贴心凿挖一个猫洞
为日后新加入的成员预留一个安心栖所

2. 客厅设计:
白透感的内涵中漾起简净独特气质
光束照射于地面映现韵律的线条美感
明暗之间回归纯净,力求不受框架局限的束缚
以空白盛装叙事诉诸率性本真状态
展现自我的个性主张、精神与格调


相较于乳胶漆的光滑面
使用具有微颗粒感的凯恩矿物涂料
一来更能彰显立面的特殊触感与柔光色泽
显露内敛优雅的低调微镜面效果以及粗朴立体感
二来也能守护安全无毒的居家环境




实木木百叶+卧榻区,两者一拍即合
既能悠闲坐倚窗边享受日光洗礼
也能作为收藏品的展示平台
漫进的暖光书写一日朝气
待夜幕降临点亮错落有致的吊灯
自成一格耐人寻味的艺术氛围


3. 餐厅设计:
镘抹上优的钢石
细微肌理与特殊流纹便温柔舒展开来
一体成形无接缝的特性承袭了墙面的白系空间
安静无语却充满生活的温情与暖流
铺叙为底,赋予柔和姿态迎接未来每一日


揉入台湾本土陶艺家作品点缀餐区
酝酿质朴大地润泽气息
温儒雅致、恬淡适己
白润宅居抹上陶土的温度并搭载木调与藤编材质
流泻清新雅致的用餐情调,伴屋主享用品尝佳肴

4. 天花板设计:
保留原始天花高度并注入些许柔弧感
公区的横梁以圆角收边
轻巧的设计力道埋下不着痕迹的隐形分割
维持全室一贯之视线无阻的朗澈通透感

5. 主卧设计:
步伐推进迈入睡眠区
悄悄置换上轻浅木纹地板
延续主体性的白净柔润盐系感
谢绝浓墨厚重的多余华丽装饰
聚焦静谧淡雅日常,留下一室隽永诗句

房内大梁以弧面柔顺衔接,消弭尖锐感
一盏线条典雅的奶油灯呼应木系床头
营造柔韵光感情境,选配Great Living 格蕾寝饰
防蹒抗菌铺棉品质与轻柔耐水洗的特质,打造舒心睡卧境地

6. 更衣室设计:

嵌入灯条的玻璃柜更显莹白透亮
这是女主人摆放包包、配件的地方
相依而序的一字形梳妆桌构筑打理仪容的小天地
同时辅以系统柜建立藏纳有序的储物哲学
平整收拢、避免紊乱,迎来清爽之姿

