哈喽大家好,我是婉儿,很高兴又见面了!
之前在装修日记里就和大家提到过,我家是开放式厨房设计,那么目前呢已经入住了9个月,今天想和大家展开唠唠我家开放式厨房打造实录及入住后的具体感受,希望能给计划做开放式厨房的小伙伴们一些参考。


促使我和队友坚持做开放式厨房主要有两个原因:
1、原户型的厨房采光差,而且面积小,入户就是一堵墙,整体感受很压抑
2、之前的房子是封闭式厨房,但住了近10年发现,厨房门几乎都没有关上的时候

尽管在敲定装修方案前,父母和朋友都反对我们做开放式厨房,但我和队友一直没有改变过想法,最终还是坚持了自己的选择。

厨房装修前后对比
二、我家开放式厨房的设计思路及打造实录1、厨房吊顶的选择——选用耐水性石膏板
我们户型结构有一个很大的bug就是梁多,厨房和餐厅之间有一个很深的横梁,直接导致厨房区域和客厅区域的吊顶方案修改了几版,当时设计师提供了四种吊顶方案:弧形吊顶、回型吊顶、裸梁以及厨房区域齐梁平吊:
弧形吊顶的好处就是最大限度地保留了层高,缺点是容易裂开,且后期维护成本更高;
因为之前的房子就是用的回型吊顶,所以新家吊顶方案就直接给pass了;
家里隐蔽工程有中央空调和管道新风,因此需要吊顶藏起管道;
厨房区域齐梁平吊的好处是视觉上更整洁统一、空间感更强,缺点是压低了厨房区域的层高,房子的原始层高是2.84m

我和队友在弧形吊顶和厨房区域齐梁平吊之间犹豫了许久,最终还是选择了后者。

不得不说,装修的时候事情真的是又多又杂,就会很容易遗漏一些问题,在厨房吊顶阶段特别需注意的是,如果你家也要做开放式厨房,厨房上方的石膏板尽量选用防火/耐水的石膏板,更抗油、抗污、防水一些。

我家是工人师傅把吊顶做完后我才发现给我家配送的是普通的石膏板(下单的时候其实是有备注厨房区域是耐水石膏板来着),工长在验货的时候并没有注意到这一点,后来是我发现后要求重新拆除普通的石膏板,更换了耐水石膏板。

绿色区域就是耐水石膏板
其次,还需要注意的是厨房区域记得要预留一个检修口,一旦吊顶内的设备出现问题需要检修,如果没有预留检修口,就需要破坏大面积的吊顶,这不仅维修成本极高(拆装工费+重新刷油漆费用),而且会产生大量灰尘,严重影响整个客厅和餐厅的日常生活和美观。我家预留的是30*30cm的石膏板检修口,与吊顶融为一体,不放大细看,不太容易发现。

集成灶是新家最早入手的家电,个人建议它和橱柜放在同一天进行安装。集成灶是我在线下火星人店闲逛时一眼就相中的,虽然当时超了有2K的预算,但最终还是为了颜值买单,1.2W拿下。

在集成灶里,它的颜值绝对是很高的,而且本人超爱白色家电。它的吸力也是真的强劲,提供四档吸力,平时我们炒菜开到2档就足够了。因为队友是湖南人,也很爱吃辣,所以每次炒辣椒的时候开到3档就完全够用,做菜的人以及在客厅沙发坐着的人是完全感知不到什么油烟的,更不会呛喉咙。

集成灶我选的是蒸烤一体的,平时用它蒸早餐、炸薯条、烤蛋挞、暖菜啥的都很方便,所以厨房台面上一下子就省掉了像蒸锅、空气炸锅、烤箱、微波炉等小家电。


要说集成灶的缺点,从我目前的使用体验来说,总结有三个:一是它确实较油烟机要贵很多,购入成本不低;二是烟道接管会从地柜里穿过,就得牺牲掉了一个小地柜的空间,储物能力直接缩减;三是吸力太猛,一度怀疑香味都被吸走,感觉炒的菜都没以前香了。

说完了集成灶再说说我觉得买得很值的一个家电吧,那就是洗碗机,这个海尔白日梦想家洗碗机W30S我是2K左右入手的,容量很大,过年过节招待亲友后的所有餐碟、碗筷放进去都没有问题,洗得也干净,我几乎天天都在用,碗不多的时候分层洗也很省事。


新房里的厨房好像是被开发商刻意遗忘的角落,似乎业主买它都不用考虑做饭一样。我买房那几年看的新房的厨房面积都小得可怜不说,采光也是一言难尽,更有甚者,厨房连个窗户都没有。

照明方面,我家整个公区都采用的无主灯设计,所以厨房也是无主灯。灯位布局主要是:入户玄关*4(筒灯)、水槽上方*2(筒灯)、厨房中心区域*3(筒灯)、吧台*2(射灯)

这里顺便提一下筒/射灯的配置吧,电工预留的孔径都是标准的75mm,瓦数我看各个厂家的标准不同,我家选是欧普的筒/射灯,都是7W的,因为个人不喜欢黄光,所以直接选了4000K的中性光,说暖不暖,说冷不冷,感觉还蛮像我的性格……

白杯是筒灯,黑杯是射灯,属于见光不见灯的那种,防炫的效果还是比较明显的,射灯的小山丘还有点氛围。总得来说,我家整个厨房的光照还是比较OK的。
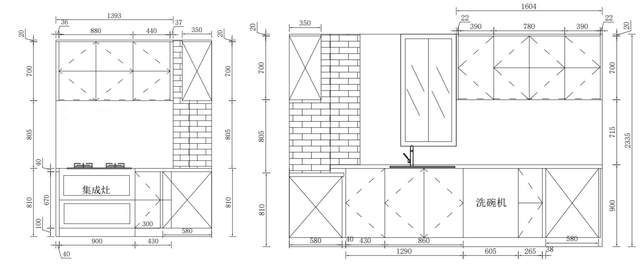
4、厨房吊柜、橱柜的设计思路厨房吊柜主要是两组,一组在集成灶的正上方,用来放置不常用的厨房物品;另外一组则在洗碗机的上方一直延伸到冰箱柜,两组吊柜的深度是35cm,高度是70cm,无门把手设计,门板下沿1cm,因为整个装修风格是原木奶油风,所以地柜选的原木色,吊柜选的是奶白色。

吊柜设计草图效果

吊柜实际效果
台面下方的地橱其实不算多,除开水槽下方、洗碗机区域、拉篮区域,可以供收纳的空间也比较有限,好在搬家前断舍离了一些不常用的家电。下方橱柜的深度做的60cm,尺寸也一并分享给大家。


提到这里,我想顺便再说一下拉篮,在安装拉篮前,我也和很多小伙伴一样,觉得它可以帮我把盘子、碗筷、勺子啥的都归置得明明白白的,但是实际安装完成后,我才发现,碗篮是很挑餐具的,像稍微大一点,或者深一点的盘子,高度不够就很容易卡住。

所以大家在设计碗篮的时候,一定要把家里常用盘子的尺寸考虑进去,如果餐具不是很多,甚至可以不用考虑碗篮或平篮,可以参考一下宜家的收纳。

碗篮

平篮
5、台面高度设计(80cm+90cm)厨房台面是石英石材质,厚度1.5cm,整个看面是4cm,无挡水条设计,水槽是欧琳的大单槽,尺寸为750*490*207mm,和双槽相比,个人还是更喜欢大单槽一些,锅具可以平放,清洗更实用省地。另外欧琳配的抽拉水龙头用着也很顺手,洗菜、洗水果啥的都方便。

这里分享一下橱柜设计师发给我的操作台+烹饪台高度黄金公式:
操作台黄金高度算法:
胳膊肘高度-12~15cm=最舒适高度
烹饪台高度算法:
操作台高度-10cm=完美灶台高度
像我的身高是163cm,队友是175cm,最终我们定的是洗菜/备菜区90cm,搭配80cm烹饪区,我俩都不高,用着觉得还挺合适的。洗菜切菜不用弯腰,炒菜也不用架着胳膊。

我家地面通铺的是750*1500cm的浅色柔光砖,所以会更容易显脏一些。地面清洁婉儿主要依赖的是洗地机,用它对付日常的调料、饭/菜渣、酱料等可以说相当轻松,一个推拉都能搞定,高效也干净,主打一个省时省心。

洗地机这块如果注重性价比的小伙伴,可以考虑石头A30 Pro;

如果想一步到位,也可以选择石头近期新出的A30 Pro Ultra,它的超微泡沫洗真的是秒去污,更适合有娃养宠家庭,感兴趣的小伙伴可以翻阅婉儿的往期文章了解。

台面的话,基本就是每次吃完饭我会把碗筷放洗碗机里后,及时去收拾和清理台面,这里需要提醒的是厨房台面是很容易染色的,所以不要把容易染色的袋子或者食材直接放上面,如果万一还是不小心渗色了,可以用类似84强力清洁剂去擦除。

这里再说一下整个厨房的动线,我基本都是在吧台摘菜,分拣水果——在水槽洗菜——水槽左侧或右侧切菜——集成灶炒菜。明显不足的是切菜区较小,要是招待客人的时候,会觉得很不够用,这也是设计时比较欠考虑的地方,大家可以在动线的时候多多留意一下。另外,我个人觉得吧台还是蛮实用的,后期也准备打造成一个简易的咖啡角或者水吧。

我家的常住人口是4人,我、队友、婆婆和孩子,每天在家至少是要开两次火的,休息日或节假日甚至会有三顿,厨房的墙面或多或少会有丢丢粘手和油腻感,除了平时擦洗维护外,我也会定期去深度清洁,但不得不说,柔光墙砖确实比亮光砖更难擦。

时间真的挺快的,一晃入住新家已经9个月了,确实有挺多具体和深刻的感受可以给大家分享的。
让我深感“真香”的优点:1、空间感和通透感是无价的
我家户型不大,拆掉厨房那面墙之后,整个客餐厅厨房连成一体,瞬间感觉大了好几个平米。
社交核心区:这是我最爱的一点。每次亲友来我家,我在厨房备餐、炒菜时,都能和坐在客厅、餐厅的他们无缝聊天。
2、功能整合与效率提升
我觉得开放式厨房对有娃或养宠的家庭特别受益。当你在厨房忙碌时,一抬眼就能看到他们在客厅做什么,玩什么,非常安心。
3、美观与整洁的“强制驱动”
因为厨房完全暴露在外,你会被迫养成“台面尽量少放东西”和“随手清洁”的好习惯,这应该算是一种正向激励。

1、噪音问题
厨房没有门以后,完全没有隔音,如果炒菜时家人在客厅看电视,必须得调高音量才行。像破壁机、洗碗机工作的声音也会毫无遮挡地传遍整个空间。
2、气味残留
虽然集成灶可以吸走油烟,但食物的气味是无法完全吸走的。特别是像火锅这类美食,那个味道会在整个开放空间里停留小半天,久久都不消散。
3、杂乱与隐私的暴露
“强制整洁”的反面就是无法隐藏,它会将所有的“不完美”都一览无余。
结语如果你问我新家做开放式厨房我后悔吗?从目前使用9个月的情况来看,我一点也不后悔选择。它带给我的空间感、功能整合和迫使我保持整洁的习惯,远远超过了它的缺点。当然这仅仅是我个人的使用感受啦~并不适用于所有人,大家可以结合自己家庭的实际情况和需求参考。

好了,以上是本期的所有内容,如果你喜欢今天的内容,老规矩请点赞、收藏、评论三连哦~不喜欢也没有关系,依旧祝你们积极开心,不止今天!我们下期见~bye